Василеостровский район
Legenda Васильевского
от 27.96 м²
4кв 2027 г
от 11.8 млн
Жилой комплекс расположен в Василеостровском районе. Рядом находятся Севкабель порт, Брусницин холл, Финский залив. До метро «Василеостровская» можно добраться за 10 минут на автомобиле.
В проекте предложено множество планировочных решений: квартиры-студии и эргономичные квартиры различной комнатности. Сдаются они с подчистовой отделкой, увеличенными окнами и высотой потолков 2.7 метров, а на последнем этаже – 3 метра.
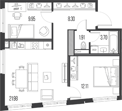
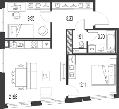
ТИПОВЫЕ ПЛАНИРОВКИ ОБЪЕКТОВ
Студия
Площадь от 28.08 м2
от 11.860.812 руб
2Е-к.квартира
Площадь от 34.94 м2
от 16.655.058 руб
3Е-к.квартира
Площадь от 55.74 м2
от 20.272.649 руб
4Е-к.квартира
Площадь от 81.18 м2
от 27.343.789 руб
возьмите максимум от вашей покупки
акции ограничены, успейте воспользоваться уникальными предложениями
Скидка для иногородних
Акция действует на все квартиры: клиентам с региональной пропиской предоставляется скидка в размере 150 000 р. от стоимости квартиры.
ипотечный калькулятор
Legenda Васильевского ЭТО

Территория комплекса благоустроена: выполнено фактурное озеленение, спроектированы места отдыха взрослых и детей, имеется протяженная прогулочная зона с разнообразным инфраструктурным наполнением.

Концепция проекта сочетает в себе целостность общего архитектурного облика и разнообразие внутренних составляющих. Монументальность и лаконичность пост-конструктивизма в новом актуальном прочтении, с использованием современных экологичных материалов и характерной для стиля орнаменталистикой.

Тактильные инструменты для развития малышей, игровые сценарии в движении, неускользающая красота круглый год, игровые элементы для гармоничного роста, баланс освещения
во времени и пространстве, органичные взаимосвязи
пространства, знакомство с флористикой и биодизайном
ПОПУЛЯРНЫЕ ОБЪЕКТЫ С
ОТКРЫТЫМИ ПРОДАЖАМИ
Остров первых

Дом на Курской

ЛДМ

Репин

Б15

Северный ветер

Струны

RESPECT

Мариинка DELUXE

Энфилд

Новая земля

Знатный

Nigilist

ЖК Сампсониевский, 32

Витебский парк

ID Petrogradskaya

ORO by Akvilon

BASHNI ELEMENT

Антверпен

Визионер

Гранат

Куинджи

Наука

Аурум

НЕ НАШЛИ ПОДХОДЯЩЕЕ?
Укажите параметры недвижимости, и мы подберем варианты в течение дня бесплатно